Ashley Lake Log Home

Kind Words...

“We want to express our appreciation for Nelson Troyer. We were facing an extreme restoration project and Nelson had the creative solution which met our situation. Montana Speciality Log Construction is just that special. Other builders offered to adapt their structures but Montana Speciality Log Construction had a vision which started with our historic cabin and site.

Nelson took our 80 year old cabin and transformed it in a manner which retained the original and melded it with new construction. He also worked within the confines of a difficult site. Our cabin which had served for 80 years has been given new life. Nelson worked with us and provided us with a unique log home. He was also able to transform walls which originally had been tapered inward to stand vertically without sacrificing the original saddle notching.

Nelson Troyer has many years of experience working with logs. This was critical for the successful transformation of our vision. He retained the original flavor, corrected the flaws, added new complementary touches, and made the vision reality.”

John and Rhonda Bell
Ashley Lake, Kila, Mt

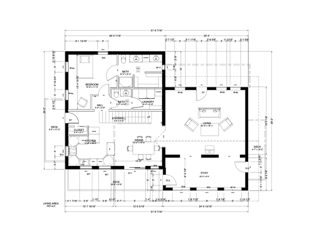
Below is a slideshow featuring the “John & Rhonda Bell” project, where we stripped, restored, and added on to an heirloom log cabin.
The stripping was done in the summer of 2013. We began scribing/fitting all the logs together for the heirloom log cabin and 28′ by 33′ log home addition, in the beginning of February 2014, in our Log Yard. The new design is shown in the plan included in the gallery